Quadrilocale in vendita

Torino, Via Guala Pietro Francesco - Mirafiori
€ 154.000
4 locali 4 locali
101 Mq 101 Mq
1 bagno 1 bagno

Quadrilocale in vendita

Torino, Via Guala Pietro Francesco - Mirafiori

Descrizione annuncio

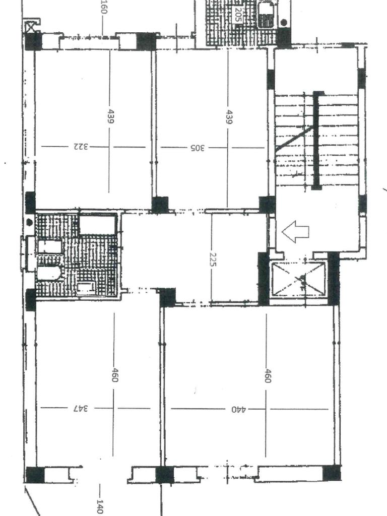
OTTIMO STATO INTERNO. TRIPLA ESPOSIZIONE. TRE CAMERE DA LETTO.

Proponiamo in vendita in via Guala quadrilocale in ottimo stato interno situato al primo piano di uno stabile degli anni '70 dotato di ascensore e in ordine nelle parti comuni.

L'alloggio è composto da un comodo ingresso che disimpegna tutti gli ambienti, tinello con cucinotto, tre camere matrimoniali, una delle tre attualmente utilizzata come soggiorno, bagno e ripostiglio.

Il bagno, completo di tutti i sanitari, è finestrato, con l'infisso cambiato recentemente in pvc con il doppio vetro, ed è dotato di box doccia e di attacchi per la lavatrice.
Per quanto riguarda invece le due camere lato via Guala, è stata aggiunta agli infissi una vetro camera, al fine di avere una maggiore tenuta termica.


L'esposizione è tripla con la presenza di due balconi, uno con affaccio su via Guala, l'altro nell'interno cortile.

Il riscaldamento è centralizzato con le termo valvole.

La proprietà è completata dalla cantina di pertinenza.

La zona è infine comoda a tutti i servizi e ai mezzi pubblici, trovandoci nei pressi di piazza Guala e a ridosso di Corso Traiano.
Inoltre è facilmente raggiungibile la stazione di Lingotto.

Mostra tutto

Nelle vicinanze

Trasporto pubblico Trasporto pubblico
Bengasi
Bengasi
1,6 Km
Italia61
Italia61
1,7 Km
stazione di Torino Lingotto
stazione di Torino Lingotto
1,2 Km
Traiano
Traiano
440 m
Caio Mario
Caio Mario
500 m
Ricariche auto elettriche Ricariche auto elettriche
Lidl Torino Traiano
690 m
Unieuro Torino Via Canelli | EnelX
1,4 Km
Bluetorino Via Giordano Bruno
1,5 Km
BECHARGE BENNET Centro Commerciale Millecity Center
1,9 Km
Lingotto - 8 Gallery - Parcheggio B1
1,9 Km
Scuole Scuole
Primaria «Carlo Collodi»
290 m
Scuola Secondaria di 1° grado "Piero Calamandrei"-ex Giovanni XXIII
290 m
Istituto d'istruzione secondaria statale di I grado «Piero Calamandrei»
380 m
Scuole
390 m
Elementare «Carlo Collodi» - succursale «Gianni Rodari»
420 m
Farmacia Farmacia
Farmacia comunale
240 m
Farmacia Baggio-Roba
280 m
Farmacia Giardini Guala
300 m
Steffanone
420 m
Guarino
530 m
Ospedali Ospedali
Presidio sanitario “Vittorio Valletta”
1,2 Km
Ospedale CTO - Emergency
2,7 Km
Ospedale CTO
2,8 Km
Ospedale Sant'Anna - Emergency
2,8 Km
Ospedale Ginecologico-Ostetrico Sant'Anna
2,8 Km
Supermercati Supermercati
PAM Panorama
90 m
Basco
150 m
iN's
230 m
D più
590 m
Penny Market
610 m
Negozi Negozi
Panetteria bergui
40 m
Traiano 52
140 m
Claudia Intimo
150 m
George's shop
170 m
Concept Chic
230 m
Bar Bar
Billy BAR
170 m
Incontri
210 m
Rondò veneziano
280 m
Bar
390 m
Punto e Virgola
420 m
Ristoranti Ristoranti
Pizzeria Noè
10 m
La Vela
240 m
Paese Zhou
310 m
Delizia
360 m
Passione Pizza Kebab 2
430 m
Mostra tutto

Caratteristiche

Rif.:
61131731
Piano:
1 di 6 con ascensore (Piano basso)
Balconi:
2
Camere da letto:
3
Arredamento:
Assente
Condizionamento:
Assente
Mostra tutto
Prezzo Prezzo
€ 154.000
Rata mutuo Rata mutuo
€ 726 / mese
Proponi il tuo prezzoProponi il tuo prezzo

Classe Energetica

E
E
E
E
E
E
E
E
E
EP globale non rinnovabile:
151.03 kW h/m² anno
EP globale rinnovabile:
151.03 kW h/m² anno
EP invernale del fabbricato:
EP estiva del fabbricato:
Anno di costruzione:
1965
Riscaldamento:
Centralizzato
Tipo impianto:
A radiatori
Tipo alimentazione:
Metano

Ti interessa visionare l'immobile?

Fissa un appuntamento  Fissa un appuntamento

Richiedi informazioni

Clicca su Leggi per aprire l'informativa
* Questi campi sono obbligatori

Calcola il tuo mutuo

Semplice e senza impegno
Anticipo

( % )
Mutuo

( % )

pochi semplici passi

inserisci i tuoi dati
Questionario completato
Grazie per aver richiesto un appuntamento senza impegno con un nostro Consulente del Credito e Assicurativo.

Hai inserito correttamente tutti i dati necessari e a breve riceverai una e-mail con un link da convalidare per inviare i tuoi dati.
Affiliato
Rj Real Estate Snc
Via Guala, 109/A 10135 Torino (TO)

Il nostro staff


  • Martina Lacarbonara
    Collaboratrice

  • Robert Ionesi
    Affiliato

  • Jessica Vizzi
    Coordinatrice
Via Guala, 109/A 10135 Torino (TO)
Zona: Mirafiori-Corso Traiano-Guala
Mostra su mappa
Orari: Dalle 09.00 alle 12.30 e dalle 15.00 alle 19.30 da lunedì al venerdì (il sabato chiusura alle ore 13)
Affiliato
Rj Real Estate Snc
Via Guala, 109/A 10135 Torino (TO)

2026 Tecnocasa Franchising S.p.A. - P. IVA 08365160152 - Via Monte Bianco 60/A 20089 Rozzano (MI). Ogni agenzia ha un proprio titolare ed è autonoma. Privacy policy | Policy utilizzo | Cookie policy