Quadrilocale in vendita

Torino, Corso Traiano - Mirafiori
€ 206.000
4 locali 4 locali
115 Mq 115 Mq
1 bagno 1 bagno

Quadrilocale in vendita

Torino, Corso Traiano - Mirafiori

Descrizione annuncio

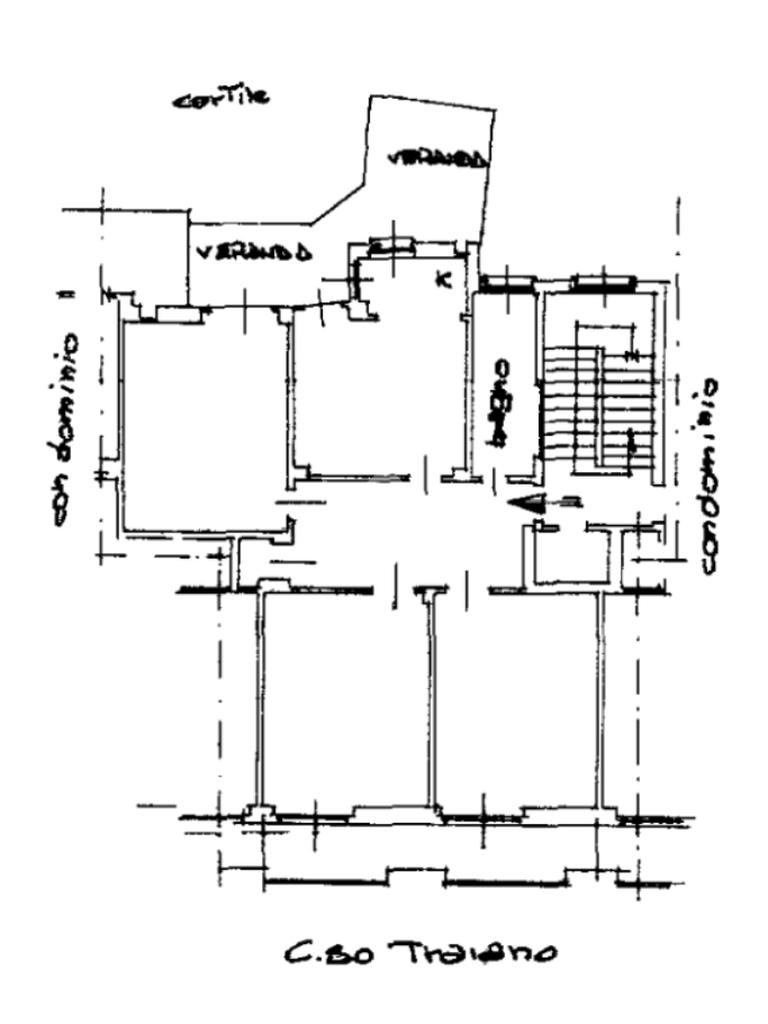
AMPIA METRATURA. PIANO MEDIO. TERRAZZO.

Proponiamo in vendita ampio quadrilocale situato in corso Traiano al terzo piano di uno stabile signorile degli anni '70.

L'alloggio è composto da un ingresso molto ampio che disimpegna tutti gli ambienti, tre camere, comodo tinello con cucinotto, bagno e ripostiglio. Il bagno, completo di tutti i sanitari, è finestrato e dotato di vasca.

L'appartamento si presenta allo stato originale, tuttavia le condizioni interne sono ottime.
Ad ogni modo, l'assenza di muri portanti, permette di sacrificare eventualmente l'ampio disimpegno ricavando un ingresso living.

La luminosità interna è ottima grazie alla doppia esposizione e alla presenza di porte finestre in tutte le stanze.
Inoltre, sono presenti un balcone decisamente ampio che affaccia su corso Traiano oltre che un comodo terrazzo verandato, anch'esso molto spazioso, situato nell'interno; quest'ultimo è sfruttabile come locale lavanderia.

Il riscaldamento è centralizzato con le termovalvole.
Completa la proprietà la cantina di pertinenza.

La posizione risulta infine comoda ad ogni tipologia di servizio, tra cui numerosi negozi e supermercati.
Inoltre la zona è molto ben servita dai mezzi pubblici ed è facilmente raggiungibile la stazione di Lingotto.

Mostra tutto

Nelle vicinanze

Trasporto pubblico Trasporto pubblico
Bengasi
Bengasi
1,7 Km
Italia61
Italia61
1,7 Km
stazione di Torino Lingotto
stazione di Torino Lingotto
1,2 Km
Traiano
Traiano
310 m
Parcheggio Caio Mario
Parcheggio Caio Mario
390 m
Ricariche auto elettriche Ricariche auto elettriche
Lidl Torino Traiano
790 m
Bluetorino Via Giordano Bruno
1,4 Km
Unieuro Torino Via Canelli | EnelX
1,5 Km
BECHARGE BENNET Centro Commerciale Millecity Center
1,8 Km
Lingotto - 8 Gallery - Parcheggio B1
1,9 Km
Scuole Scuole
Scuola Secondaria di 1° grado "Piero Calamandrei"-ex Giovanni XXIII
260 m
Liceo Statale "Regina Margherita"-succursale 1
440 m
Primaria «Carlo Collodi»
460 m
Elementare Dogliotti
470 m
Istituto d'istruzione secondaria statale di I grado «Piero Calamandrei»
510 m
Farmacia Farmacia
Farmacia comunale
90 m
Farmacia Baggio-Roba
320 m
Steffanone
350 m
Guarino
390 m
Farmacia Giardini Guala
450 m
Ospedali Ospedali
Presidio sanitario “Vittorio Valletta”
1,3 Km
Ospedale CTO - Emergency
2,7 Km
Ospedale CTO
2,7 Km
Ospedale Sant'Anna - Emergency
2,8 Km
Ospedale Ginecologico-Ostetrico Sant'Anna
2,8 Km
Supermercati Supermercati
iN's
120 m
PAM Panorama
200 m
Basco
270 m
D più
440 m
Lidl
760 m
Negozi Negozi
Concept Chic
80 m
Delizie del grano
100 m
Traiano 52
170 m
Claudia Intimo
190 m
Panetteria bergui
210 m
Bar Bar
Billy BAR
220 m
Incontri
300 m
Rondò veneziano
360 m
Bar
380 m
Caffè mania
400 m
Ristoranti Ristoranti
Paese Zhou
150 m
Pizzeria Noè
170 m
La Vela
360 m
Passione Pizza Kebab 2
360 m
Ichi
380 m
Mostra tutto

Caratteristiche

Rif.:
60974659
Piano:
3 di 6 con ascensore
Balconi:
1
Terrazzi:
1
Camere da letto:
3
Arredamento:
Assente
Mostra tutto
Prezzo Prezzo
€ 206.000
Rata mutuo Rata mutuo
€ 971 / mese
Proponi il tuo prezzoProponi il tuo prezzo

Classe Energetica

G
G
G
G
G
G
G
G
G
EP globale non rinnovabile:
255.84 kW h/m² anno
EP globale rinnovabile:
255.84 kW h/m² anno
EP invernale del fabbricato:
EP estiva del fabbricato:
Anno di costruzione:
1970
Riscaldamento:
Centralizzato
Tipo impianto:
A radiatori
Tipo alimentazione:
Metano

Ti interessa visionare l'immobile?

Fissa un appuntamento  Fissa un appuntamento

Richiedi informazioni

Clicca su Leggi per aprire l'informativa
* Questi campi sono obbligatori

Calcola il tuo mutuo

Semplice e senza impegno
Anticipo

( % )
Mutuo

( % )

pochi semplici passi

inserisci i tuoi dati
Questionario completato
Grazie per aver richiesto un appuntamento senza impegno con un nostro Consulente del Credito e Assicurativo.

Hai inserito correttamente tutti i dati necessari e a breve riceverai una e-mail con un link da convalidare per inviare i tuoi dati.
Affiliato
Rj Real Estate Snc
Via Guala, 109/A 10135 Torino (TO)

Il nostro staff


  • Martina Lacarbonara
    Collaboratrice

  • Robert Ionesi
    Affiliato

  • Jessica Vizzi
    Coordinatrice
Via Guala, 109/A 10135 Torino (TO)
Zona: Mirafiori-Corso Traiano-Guala
Mostra su mappa
Orari: Dalle 09.00 alle 12.30 e dalle 15.00 alle 19.30 da lunedì al venerdì (il sabato chiusura alle ore 13)
Affiliato
Rj Real Estate Snc
Via Guala, 109/A 10135 Torino (TO)

2026 Tecnocasa Franchising S.p.A. - P. IVA 08365160152 - Via Monte Bianco 60/A 20089 Rozzano (MI). Ogni agenzia ha un proprio titolare ed è autonoma. Privacy policy | Policy utilizzo | Cookie policy